◆介紹
XGN15-12系列SF6組合式、金屬密封開關柜已通過中國國家高壓電器質量監檢驗中心—西高所的型式試驗。
選用的開關裝置包括:
負荷開關,斷路器,隔離開關
XGN15-12系列產品,柜體結構合理緊湊,體積小,安裝方便,操作靈活簡便,運行安全穩定,免維護,廣泛用于10kV供配電系統。
柜體實際尺寸為:375, 500, 750mm寬,1400, 1600, 1805mm高,980mm深。
所有控制功能元件集中在正面操作板上,柜內可根據需要配備避雷器,CT、PT、繼電器、線圈、儀表等附件。
◆標準
中國GB標準:GB3804,GB3906,GB11022
中國標準:DL/T404
IEC標準:IEC298,265,129,694,420
◆主要柜型
I型柜,ABB原裝進口SFL型/SFG型SF6負荷開關組件組裝單元。
II型柜,FLN36型SF6負荷開關組件組裝單元。
Ⅲ型柜,UFS型SF6負荷開關上、下模塊搭建單元
◆溫度:
儲存時:-40℃到+70℃
工作時:-15℃到+40℃
低于-15℃,請與我們聯系;
◆海拔:不超過1000m;
◆濕度:相對濕度日平均值不大于95%.月平均值不大于90%;
◆飽和蒸汽壓日平均值不大于2.2Kpa,月平均值不大于1.8Kpa;
◆周圍空氣沒有明顯地受到塵埃、煙、腐蝕性和可燃性氣體、蒸汽或鹽霧的污染;
◆外絕緣耐污穢等級為“級、無經常性的劇烈震動。
真空開關柜主要技術參數
◆通過制作電纜頭端子,進行三芯電纜的接線。
◆通過電纜溝或底座,在底部接線。
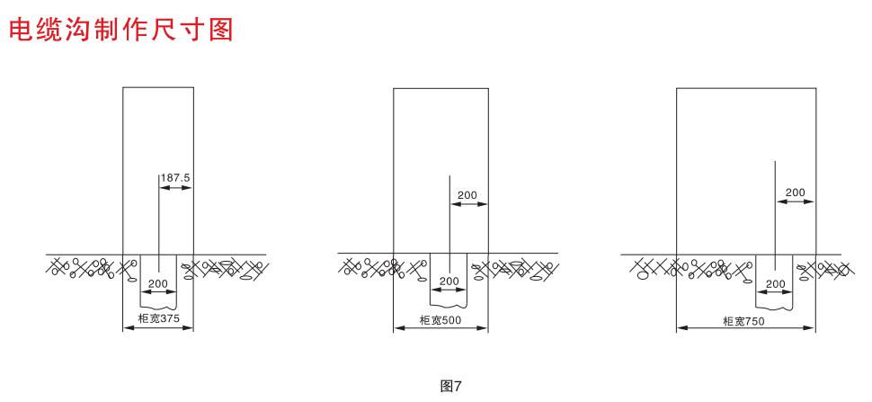
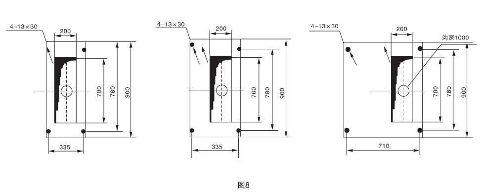
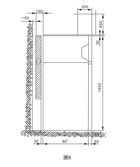
◆基礎及電纜溝尺寸要求:
◆礎選用L50*50*5角鋼或18槽鋼及以上型鋼制作;寬度900mm,長度以柜體組合尺寸確定;電纜溝寬度不小于600mm,深度不小于800mm。
◆訂貨時須提供下列資料:
◆主電路方案、編號或主電路組合排列圖。
◆輔助電路電氣原理圖及控制回路電壓。
◆開關設備平面布置圖。
◆如需非標主電路及線路方案,可委托本公司設計、生產。
◆其它特殊使用條件。
